EDIFICIO PARA 34 VIVIENDAS, PLAZAS DE GARAJE Y TRASTEROS.

Imaxen principal candidatura
TRAVESIA POZA M14.2 0 15706, SANTIAGO DE COMPOSTELA, A CORUÑA
Arquitecto
MANUEL CARBAJO CAPEANS | CELSO BARRIOS CEIDE | CARBAJO Y BARRIOS ARQUITECTOS ASOCIADOS, SLP
Arquitecto Técnico/ Aparejador
Enrique Martínez Carregal
Promotor
Alto Residencial Sociedade Cooperativa Galega
Constructor
Por administración
Fecha de inicio
-
Fecha de fin
Miércoles, 18 Octubre, 2023
PEM
4.852.142 €
Otros técnicos
  • Equipo arquitectura: David Camiño Quintela, Laura Pardo, Beatriz Asorey y Alejandro Calviño Pérez. | Arquitecto técnico: Enrique Martínez Carregal | Jefe de obra: Evaristo Mosteiro | Encargados de obra: Santiago García, Alberto Vieito. | Diseño de señalé
Categorías en las que se presenta
Premio galego de arquitectura
Sobre el proyecto

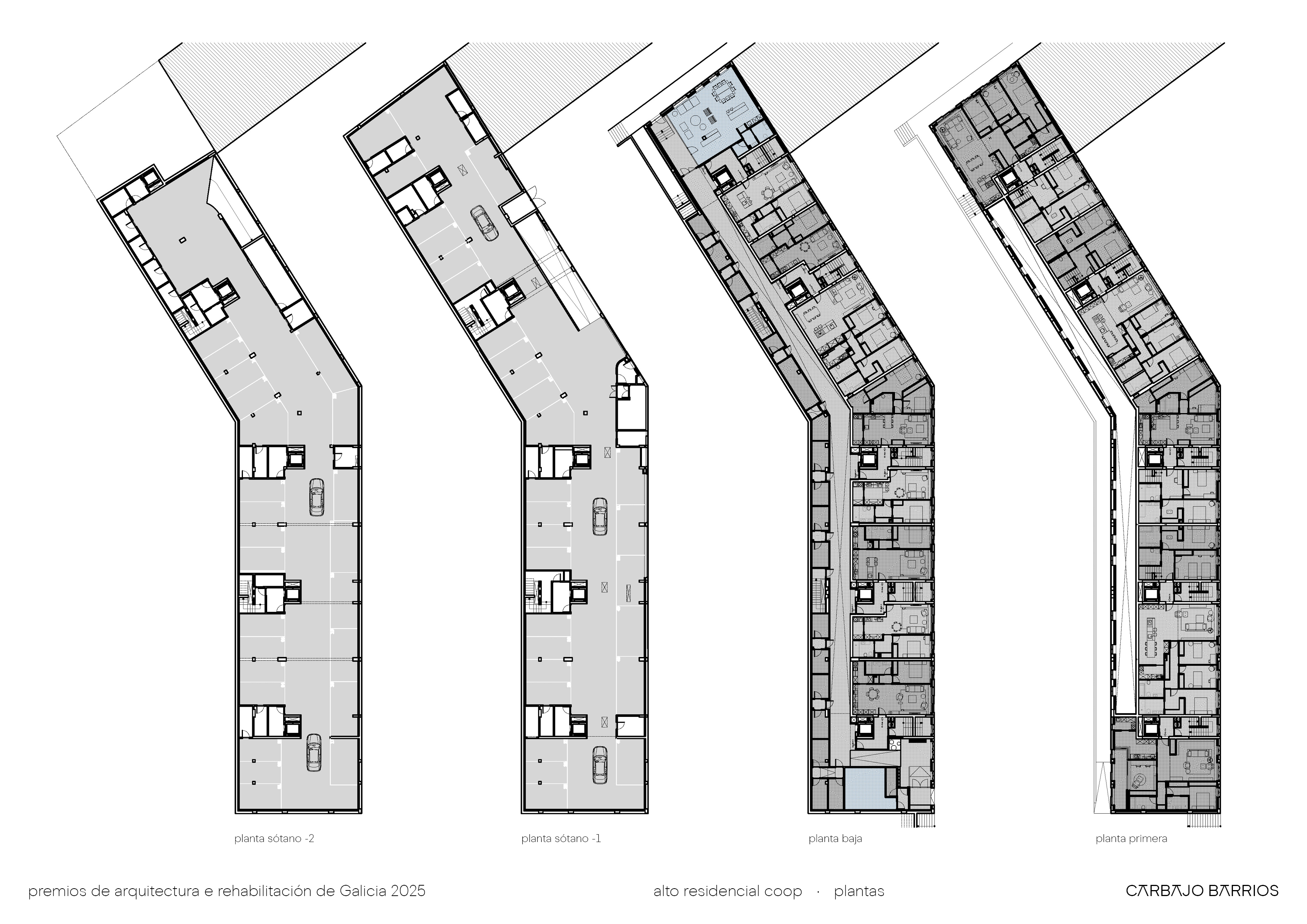
Alto Residencial Coop prevé la construcción de 34 viviendas en edificación abierta promovida por un grupo de propietarios constituidos en cooperativa, reduciendo los costes de construcción (al eliminar el beneficio promotor), democratizando la toma de decisiones y generando un sentimiento de pertenencia para la futura convivencia e interacción en el espacio construido.

La edificación se asienta en una de las últimas parcelas vacantes de un polígono residencial surgido en los años 90 en el borde del suelo urbano consolidado de Santiago de Compostela. En la ordenación urbanística vigente para este ámbito, las edificaciones de uso residencial se desarrollan en bloques en U abrazando patios interiores de uso privado, a excepción del flanco este del sector (la parcela del proyecto) que se adapta a la trama de edificación de baja densidad prexistente, mediante edificaciones en tipología de bloque abierto lineal. La parcela sirve también para resolver los desniveles existentes, siendo la edificación una contención entre distintos elementos del espacio público.

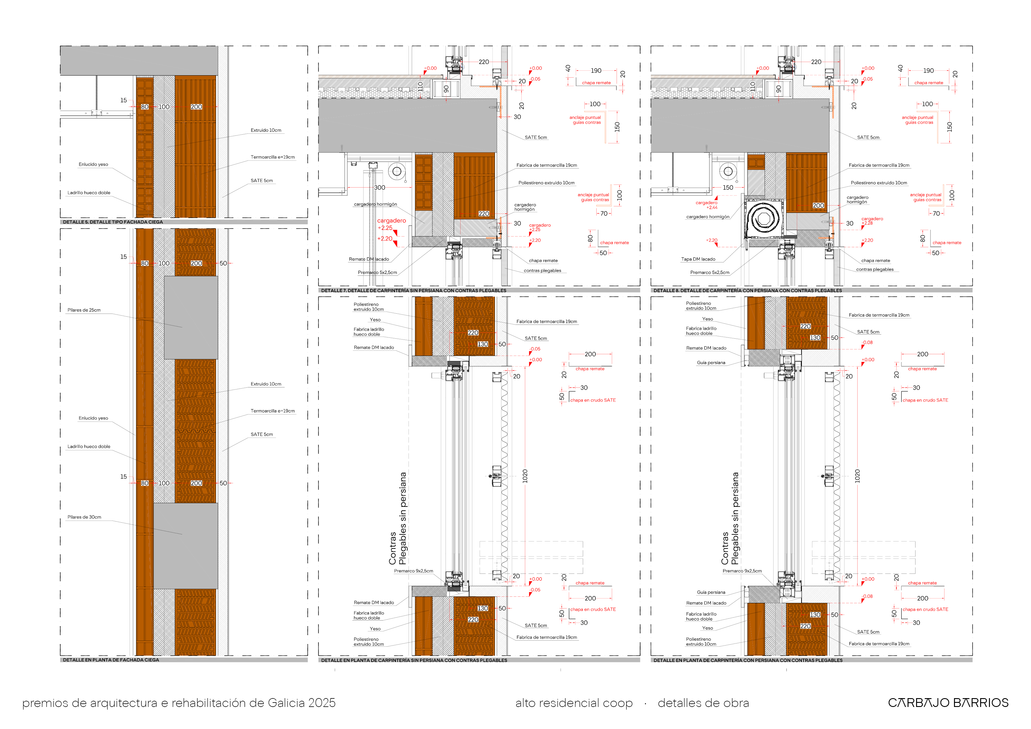
La edificación se conforma volumétricamente recogiendo los elementos configuradores del solar: un elemento lineal, borde y límite, materializado como un volumen continuo en cuya envolvente se reconocen distintas texturas: una chapa perforada vinculada a los huecos, y otra maciza, con revestimiento continuo blanco. Todo ello se culmina con una cubierta inclinada que refuerza la imagen tipológica del conjunto y que se materializa en concordancia al revestimiento metálico de los huecos de fachada.

Diseñados para una configuración flexible, los huecos aparecen en la fachada como elementos de interacción entre vivienda y entorno. Más allá de iluminar y ventilar, adquieren una función de filtro con la superposición exterior de una contraventana de chapa perforada que, permeabilizando luz y aire, protege frente al sol y matiza la relación entre interior y exterior, generando diversos grados de privacidad.