lugar reboredo, 73, 36980 O Gorve
Arquitecto
-
Arquitecto Técnico/ Aparexador
-
Promotor
-
Construtor
-
Data de inicio
-
Data de fin
-
PEM
-
Outros técnicos
-
Categorías nas que se presenta
Premio especial á sustentabilidade
Sobre o proxecto
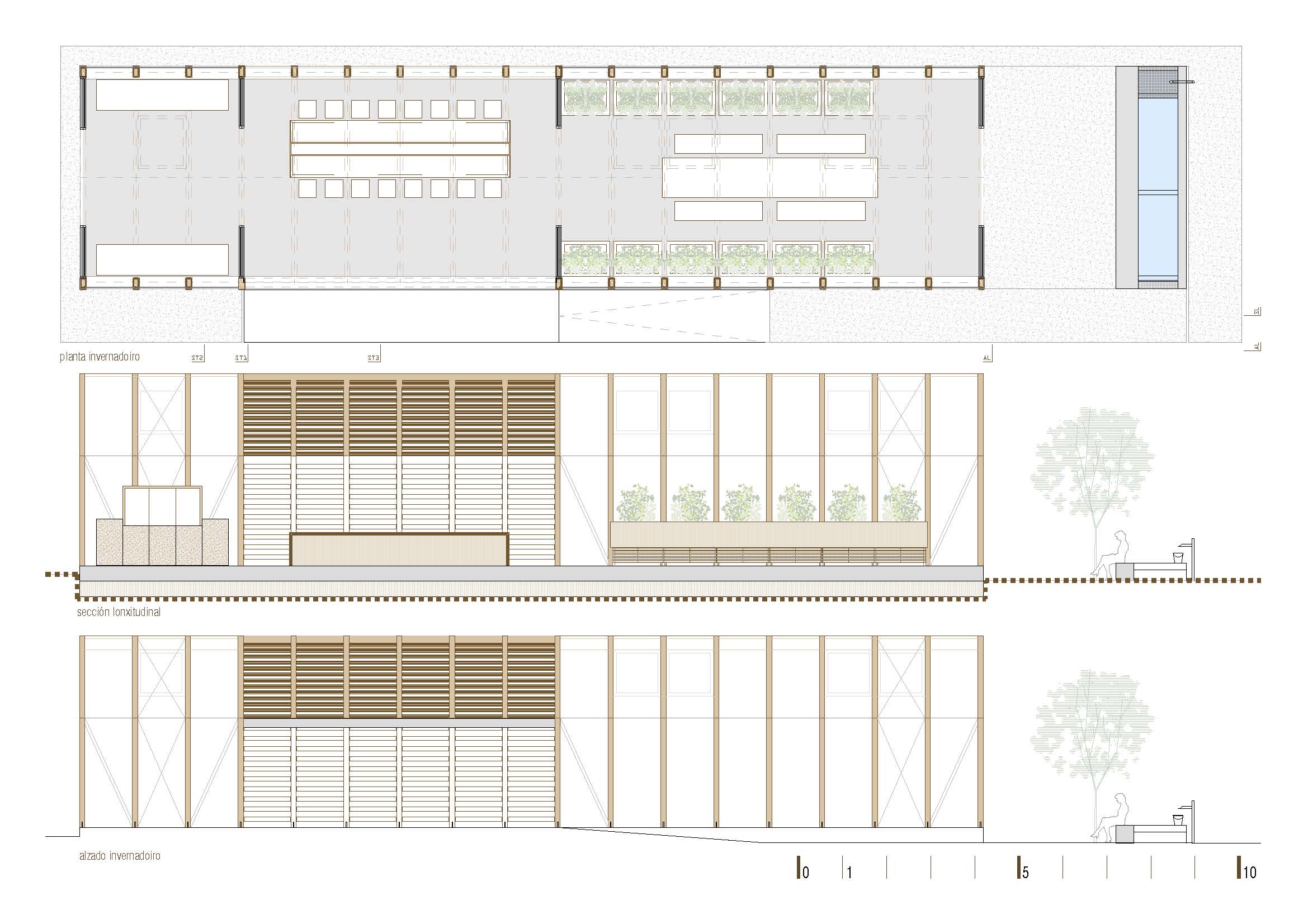
Horta e invernadoiro no restaurante Culler de pau.