CAMPUS DA AUGA

Imaxen principal candidatura
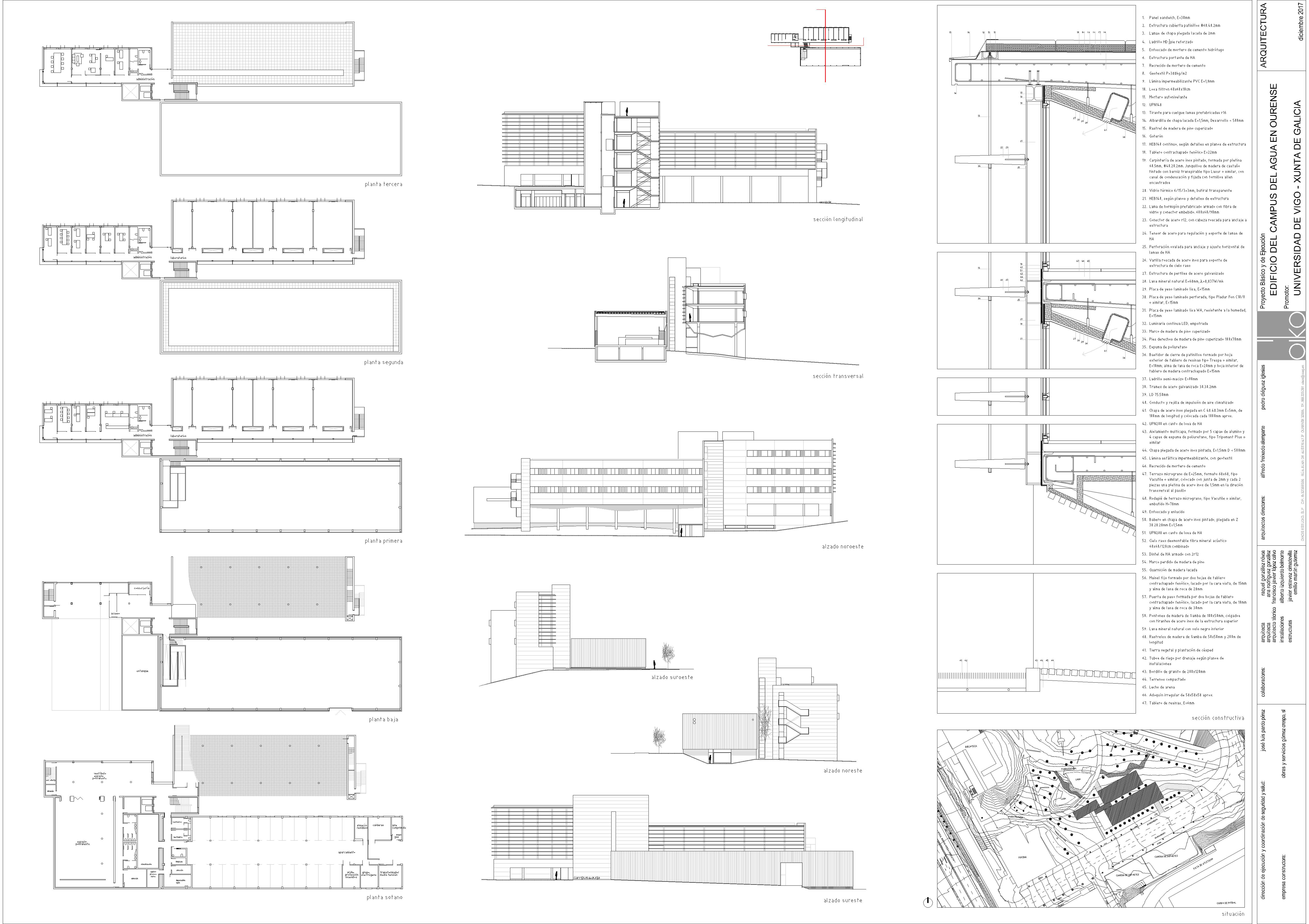
Universidade de Vigo, Campus de Ourense, Ourense
Arquitecto
-
Arquitecto Técnico/ Aparexador
-
Promotor
Universidade de Vigo. Xunta de Galicia
Construtor
Obras y Servicios Gómez Crespo, S.L.
Data de inicio
-
Data de fin
Martes, 12 Decembro, 2017
PEM
3.042.758 €
Outros técnicos
  • Dirección de Execución e Coordinación de Seguridade e Saúde: José Luis Pardo Pérez
Categorías nas que se presenta
Premio galego de arquitectura
Imaxes adicionais
Sobre o proxecto

 

Edificio para laboratorios de investigación relacionada coa auga.
O edificio articúlase en tres volumes diferenciados que acollen funcións específicas do programa.
O núcleo de comunicacións verticais actúa como  charnela dos distintos volumes.

O edificio tenta que o límite non nos fale de peche.
A visión desde a parte central do campus é de  levidade.
A peza elévase para que o espazo libre poida seguir fluíndo ata atopar un patio interior con árbores que nos fala de natureza.

Planos