Reestructuración de 4 vivendas na rúa Ferrería 45-47 no casco vello de Vigo

Imaxen principal candidatura
Reestruturación de 4 vivendas na rúa Ferrería 45-47 no casco vello de Vigo
Arquitecto
-
Arquitecto Técnico/ Aparexador
-
Promotor
Consorcio Casco Vello de Vigo
Construtor
Ute Ferrería 45-47 (Prace- Extraco)
Data de inicio
Venres, 18 Marzo, 2016
Data de fin
Venres, 18 Agosto, 2017
PEM
-
Outros técnicos
-
Categorías nas que se presenta
Premio galego de rehabilitación
Imaxes adicionais
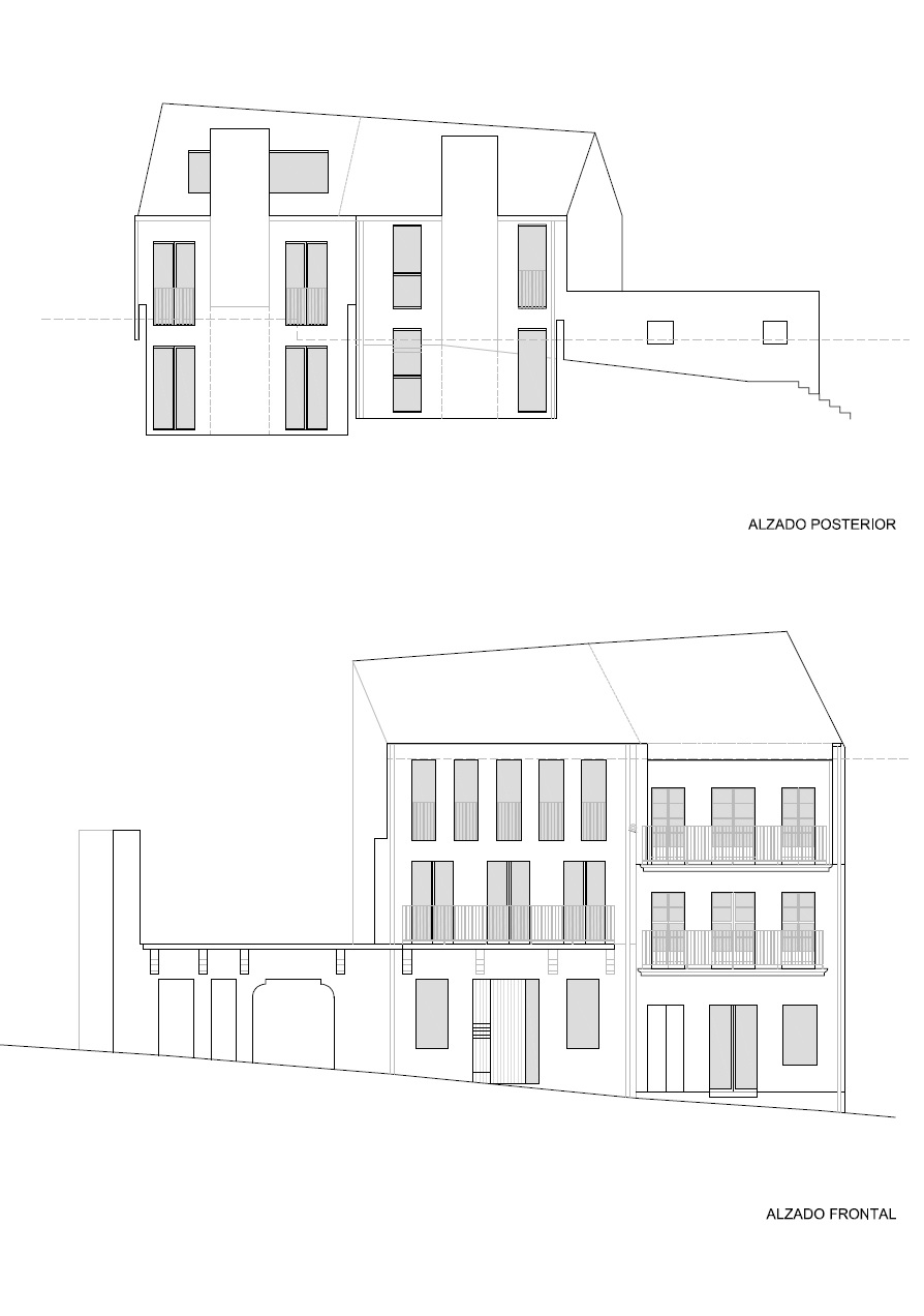
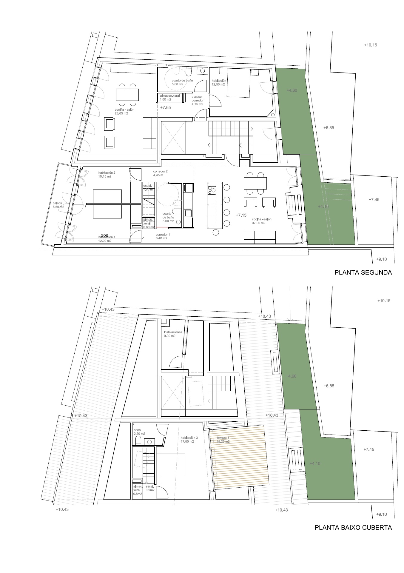
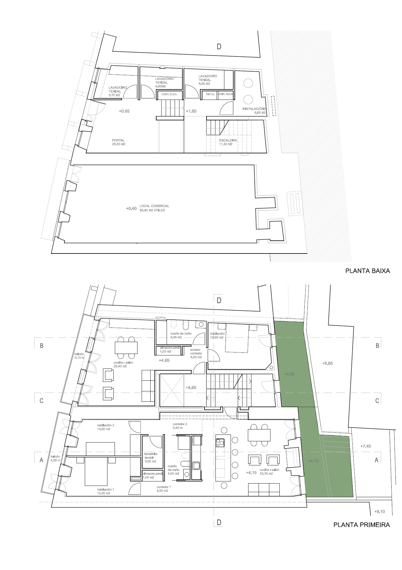
Sobre o proxecto

Dúas edificacións a restaurar, Ferrería 45 e 47, na parte alta do casco vello de Vigo, sobre a ladeira que, con gran pendente, encara o castelo de San Sebastián. Enclave que enterrou a planta baixa e primeira no fondo da parcela. Este é o punto de partida do proxecto, o principal problema a resolver. Decídeseescavar un patio inglés nese fondo para dar fachada ás vivendas: ventilación, luz e un espazo axardinado privado. Consérvase en Ferrería 47 chemineas senlleiras que, da man do patio recén nacido, van atraer cara a si a estancia principal da vivenda. Un local comercial e catro vivendas de un, dous e tres dormitorios que comparten os elementos de comunicación. Dúas edificacións con estados dispares de conservación; Ferrería 47 coa fachada, toda ela en pé; e Ferrería 45 soamente con media planta baixa e restos dun gran balcón soportado por ménsulas, darán lugar a dúas solucións diferentes de fachada. Unha recupera a súa imaxe orixinal, fachada de pedra con carpintaría enrasada ao exterior e parteluces; e outra reconstrúese ata o balcón de pedra, lugar onde se apoia a nova fachada máis lixeira, con carpintaría ao interior e xambeados vistos de madeira. O diálogo, a media voz, entre as dúas fachadas realizao un novo material, panel de cemento branco, de corte, cor e colocación similar a táboas de madeira. A fachada posterior de pedra precisa aumentar en altura e profundar no novo patio. Precisa tamén aperturas máis amplas. As chemineas axudan, na súa vertical, no soporte estrutural e na composición do alzado. O formigón de cemento branco e area de cor tostada, cun encofrado que continúa as xuntas das pedras, enlaza e completa a fachada. Os muros medianeiros existentes,de pedra,crecen en formigón cando non alcancen a cuberta. Algúns deles quedarán vistos no interior. Nace dende a cimentación un novo muro que soporta a escaleira e a través dela, o portal énchese de luz. Os forxados de madeira apóianse sobre as vigas metálicas vistase a madeira de faia cobre parte das paredes en continuidade coas carpintarías. Recupéranse pequenas presenzas do pasado. A canle de pedra de recollida da auga ten presenza no salón da vivenda e a gárgola traspasa a nova fachada.A fermosa porta de Ferrería 47restáurase eabre agora ao local comercial na planta baixa.