REHABILITACION DAS ANTIGAS VIVENDAS DOS MESTRES DE RIANXO

Imaxen principal candidatura
-
Arquitecto
-
Arquitecto Técnico/ Aparexador
-
Promotor
-
Construtor
-
Data de inicio
-
Data de fin
-
PEM
-
Outros técnicos
-
Categorías nas que se presenta
Premio galego de rehabilitación
Imaxes adicionais
Sobre o proxecto

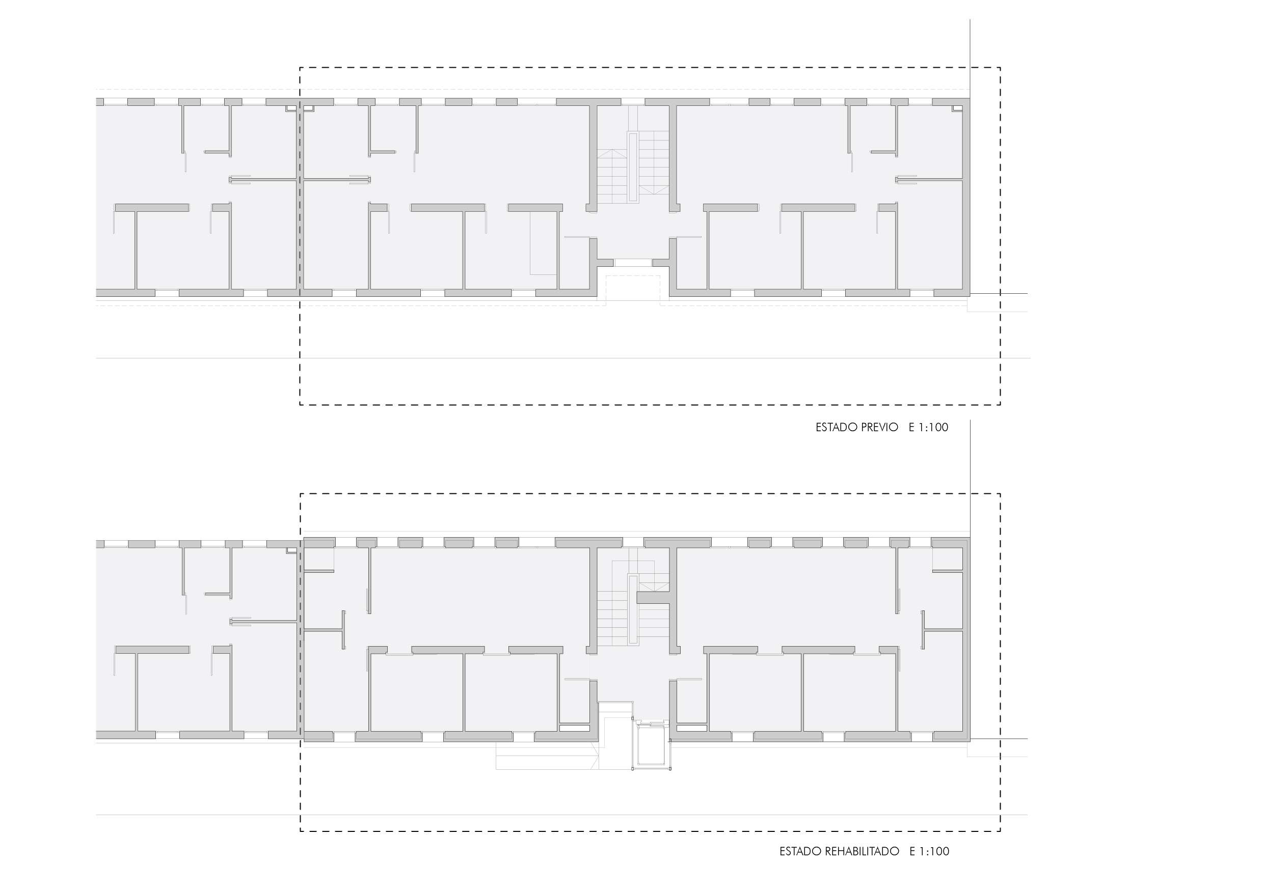
O edificio a rehabilitar sitúase na Rúa dos Mestres, no centro de Rianxo. No estado orixinal, o edificio encóntrase nun estado de desuso e deterioro acusado. Este conta con catro vivendas ás que se accede a través dun núcleo central de escaleiras sen ascensor. A accesibilidade será unha das cuestións básicas a resolver. Ademais, encontrarémonos que os muros de carga fixéronse de palla, o que será un condicionante destacado na elaboración do proxecto. O proxecto trata de darlle unha nova vida a este edificio singular, que nos narra a historia doutra época para iso proxéctase a creación de 4 novas vivendas para uso social (para familias en situación de emerxencia).

O obxectivo da intervención é: facilitar o uso aos novos habitantes, xerando espazos de calidade e resolvendo o problema da accesibilidade da maneira máis racional posible, de tal forma que se manteña a identidade do bloque, para iso mantense a súa estrutura orixinal no interior e as súas aperturas na fachada. Trabállase do modo máis racional posible, tendo en conta o axustadísimo presuposto manexado.

No interior, realízanse axustes na disposición do baño e da cociña, co obxectivo de xerar un gran espazo diáfano orientado ó novo parque urbano proxectado na parte posterior da parcela, a modo de salón-cociña-comedor. Completaremos este novo espazo cunha illa central a modo de cociña. Nas habitacións, manteremos as aperturas orixinais usando portas corredeiras, na procura de non perder a súa imaxe previa. En canto aos acabados interiores, utilizouse un pavimento laminado de madeira na totalidade da vivenda a excepción dos baños, nos que optouse por una solución cerámica. En canto as paredes, decidiuse por unha pintura plástica de textura lisa de cor branco e rodapé.

A accesibilidade resólvese cun ascensor na fachada principal, co obxectivo de non alterar a estrutura das escaleiras. Este situarase a carón do portal de acceso, sen prexudicar en ningún caso á iluminación natural das vivendas, e facilitando o acceso ás mesmas. Unha estrutura metálica envolta nunha pel translúcida de policarbonato materializará esta nova peza. No caso da fachada, gravemente afectada polo paso do tempo, dispúxose dun sistema SATE cun acabado de cor branco. A relación da fachada coas carpinterías das vivendas esperta interese no detalle construtivo. Co fin de ter a maior iluminación natural posible, adóptase por axustar á carpintería rasada co límite do SATE. Esta decisión xera unha imaxe moi particular vista dende a rúa.

O proxecto nace tendo en conta tres elementos ou condicionantes: primeiro actuar tratando de manter a esencia orixinal que caracterizaba as vivendas na súa orixe, segundo para facilitar o uso aos novos habitantes, xerando espazos de calidade e resolvendo o problema da accesibilidade da maneira máis racional posible, e por último, o presuposto tan axustado co que se contaba, que foi determinante en cada unha das decisións do proxecto.