REFORMA DE EDIFICIO EXISTENTE PARA 8 VIVIENDAS UNA OFICINA Y APARCAMIENTO

Imaxen principal candidatura
-
Arquitecto
-
Arquitecto Técnico/ Aparexador
-
Promotor
-
Construtor
-
Data de inicio
-
Data de fin
-
PEM
-
Outros técnicos
-
Categorías nas que se presenta
Premio especial á sustentabilidade
Sobre o proxecto

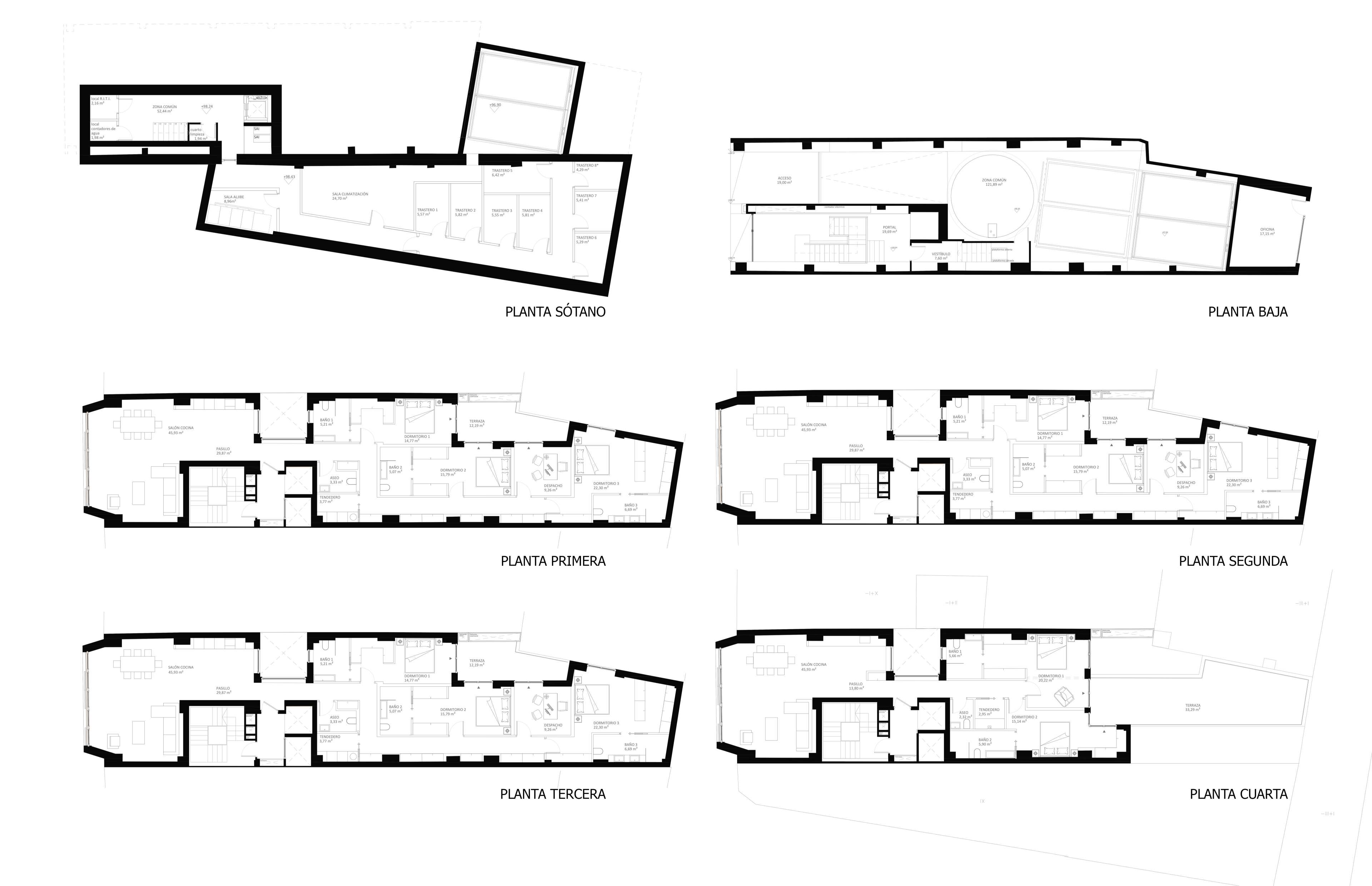
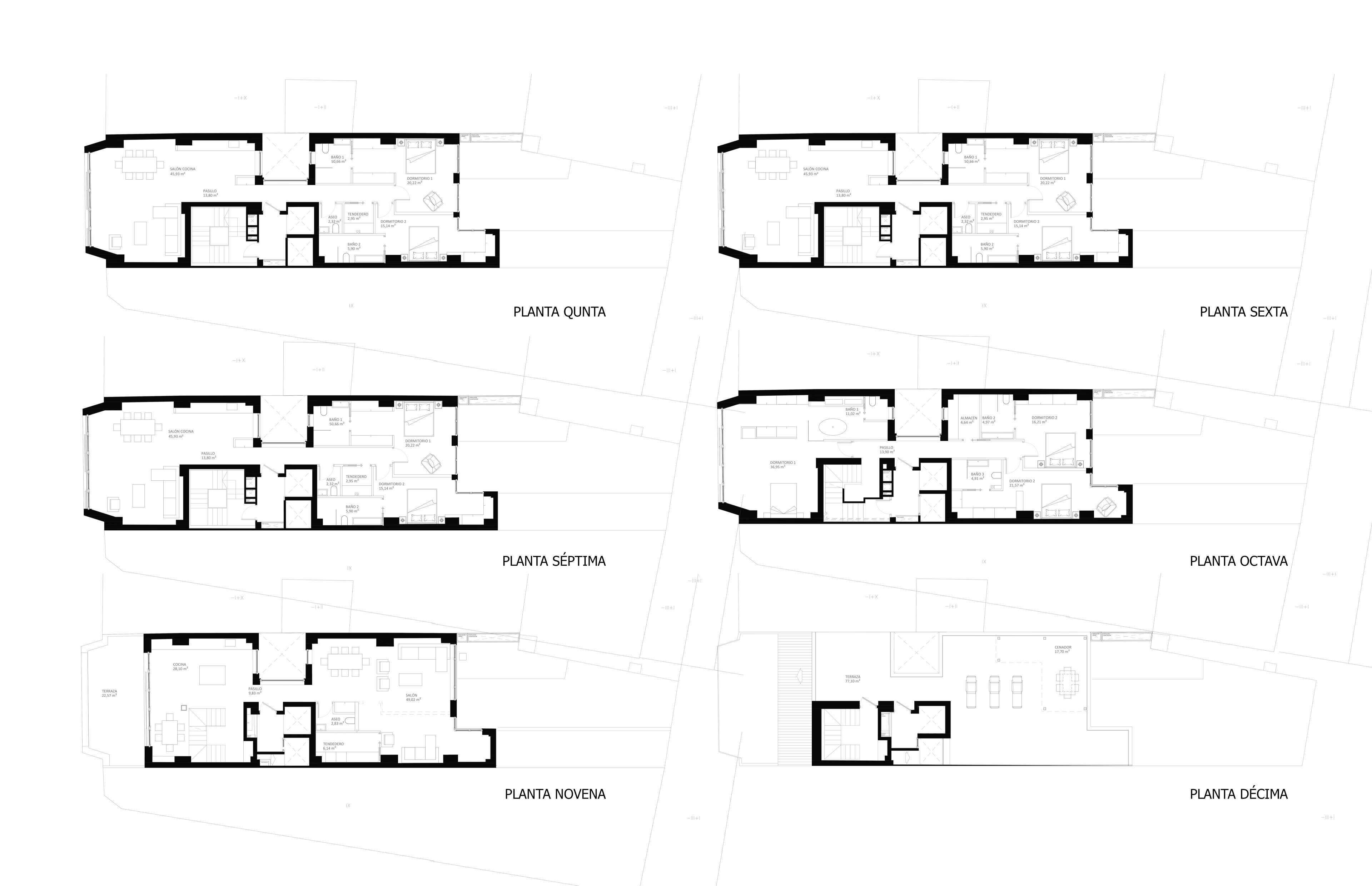
O proxecto en cuestión é unha rehabilitación dun antigo hotel coñecido no centro da cidade de Vigo, o Hotel Galicia. Consta de oito vivendas de luxo, tres de 226m2, catro de 166m2 e unha de máis de 320m2, e que posúe ademais aparcamento semiautomático na súa planta baixa e bodega no ssoto. Orientado Leste-Oeste conta con 2.278m2. O edificio ten unha clasificación enerxética A, segundo o código técnico. Segundo os cálculos realizados para a certificación passivhaus, a demanda de calefacción é12kWh/m2a e de refrixeración 5kWh/m2a. Todos estes resultados conseguíronse combinando o estudo previo da incidencia solar sobre o edificio e o seu deseño.
As estratexias de sustentabilidade aplicadas veñen asociadas aos principios passivhaus:
1.Illamento. O illamento cara a fachada Oeste confórmase 11cm de la de roca de alta densidade sobre unha fábrica de termoarcilla (14) cun acabado granítico; a fachada Leste-Norte illaranse con 10cm de espesor do mesmo material cun sistema SATE; e as medianeiras con 8cm; todo este illante colocado a tresbolillo. As terrazas compoñeranse de 15cm de XPS de media.
2.Hermeticidade. Nas casas pasivas esta entrada de aire pola envolvente prodúcese dunha forma reducida e controlada, o que leva a que as perdas por infiltracións se reduzan ao mínimo. No noso caso, a hermeticidade resolveuse case na súa totalidade con enfoscado de xeso de 15mm e cintas herméticas.
3.Carpinterías. As zonas máis débiles da envolvente son as ventás. Por isto, é fundamental contar con carpinterías e vidros de moi alta calidade co fin de limitar ao máximo a fuga de enerxía a través delas. As ventás non teñen o certificado do Passvhaus Intitute, compostas de PVC con recubrimento de aluminio, un triplo vidro cun valor de Uf=1,05W/m2K e unha g=0,59.
4.Ventilación. A ventilación mecánica controlada con recuperación de calor é un sistema formado por dous circuítos: un de entrada de aire fresco exterior e outro de saída de aire viciado interior. Ambos os dous comparten un elemento común, o recuperador, no que se aproveita en máis dun 80% a calor que transporta o aire viciado antes de ser expulsado e se transfire ao aire fresco exterior que, previamente filtrado, se atempera e se revirte á estancias. O recuperador elixido para realizar a ventilación mecánica é certificado cunha eficiencia do 85% situado na zona de lavadoiros. Para esta zona de Galicia, unha VMC é un plus engadido debido ao gas radón, o cal, ao estar a vivenda ventilada 24h queda totalmente controlado.
5.Pontes térmicas. Unha ponte térmica compórtase nun edificio como un burato nun cubo de auga: aumenta o fluxo de calor entre o interior e o exterior do mesmo modo no que a auga se derrama a través do burato do cubo. Nos edificios pasivos contrólase de forma rigorosa a eliminación das pontes térmicas. As pontes térmicas modelízanse con Flixo, e resólvense cun illamento continuo exterior en terraza, xa que todas estas son cubertas planas transitables. A ponte térmica máis desfavorables está no soto nos muros existentes, os cales se resolverán con illamento por dentro da envolvente.
6.Producción de ACS e achega de refrixeración-calorífico. Toda a fachada Oeste compóñese dunha gran ventá, a cal, é o principal activo de todas as ganancias solares de todo o edificio. No verán chegaríamos a un sobrequentamento, segundo o PHPP de 10%, polo que, para evitar posibles problemas de confort, e tendo en conta o avance calorífico que ven dado polo cambio climático, disporemos en cada vivenda dunha bomba de calor individual para cada vivenda. Estas, caracterízanse por ter un COP de entre 3,4 e 4,45, unha capacidade nominal de calefacción e refrixeración de 7,40Kw e 6,86Kw respectivamente; cun acumulador de 200l por vivenda.