Proxecto Camping Illa de Ons

Imaxen principal candidatura
-
Arquitecto
-
Arquitecto Técnico/ Aparexador
-
Promotor
-
Construtor
-
Data de inicio
-
Data de fin
-
PEM
-
Outros técnicos
-
Categorías nas que se presenta
Premio especial á sustentabilidade
Imaxes adicionais
Sobre o proxecto

Como inicio del proceso de redacción de este proyecto, se ha realizado un levantamiento topográfico del terreno y de todos los árboles existentes, acomodando la distribución de parcelas y construcciones a los mismos y conservando gran parte de la sombra necesaria. Se plantea la sustitución progresiva de los eucaliptos según las directrices del Parque Nacional.

Los servicios y equipamientos necesarios para el funcionamiento del camping, se sitúan a lo largo del tramo inicial del sendero en bucle, en su cota más baja.

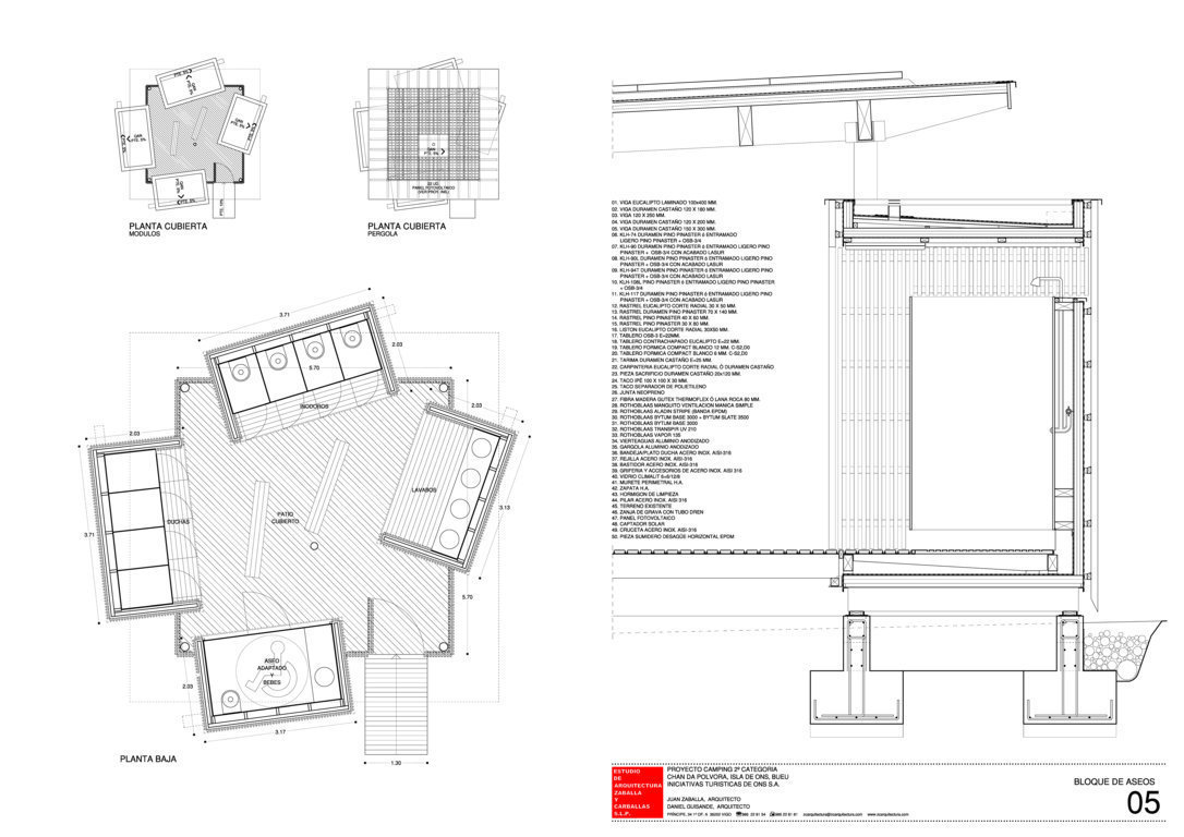
Los servicios están proyectados permitiendo su utilización por personas con algún grado de minusvalía

Se proyectan 72 parcelas de 40 m2 para tiendas. 66 para un máximo de 4 personas y 6 para 2 ocupantes, lo que supone una capacidad de ocupación máxima del camping de 276 personas.

Cada una de las parcelas tendrá una dimensión de 6,30x6,30 m.

La superficie total de acampada es menor que el 75% de la superficie de la finca.

Existirán parcelas accesibles a personas con movilidad reducida o con cualquier otra limitación, estas parcelas se sitúan próximas al sendero principal y a los bloques de servicios.

Se proyectan 5 bloques exentos que albergarán las instalaciones y servicios necesarios según el pliego de condiciones técnicas del concurso y la normativa obligada.

Cada uno de los bloques se articula como una agrupación de módulos mínimos que se disponen en torno a un patio común cubierto.

Se proyectan como conjuntos de construcciones mínimas agrupadas y generando espacios

comunes entre ellas, para que no se generen elementos de gran dimensión y fuera de la escala de las construcciones tradicionales existentes en la isla.

CONSTRUCCION

El diseño y construcción de los módulos de servicios etc parte de la premisa del ahorro energético en instalaciones como la ventilación, protección solar-climatización, iluminación etc.

El diseño lleva implícita la ventilación natural de los módulos de servicios etc. Protección solar

mediante pérgolas de madera que son base a la vez de los sistemas de paneles fotovoltaicos y de los paneles de producción de acs solar, consiguiendo además un impacto nulo de estas instalaciones en el recinto y en la propia isla.

Igualmente la construcción es toda de madera excepto la cimentación –hormigón- y los pilares de las pérgolas –acero inox-. El uso masivo de madera supone también disminuir el balance de generación de co2 en el total de fabricación-construcción.

MADERA

Los tipos de madera escogidos lo han sido en función de su idoneidad estructural o funcional, primando su procedencia local (Galicia).

Vigas de duramen de castaño sin tratar, como estructura base de los módulos y de los patios cubiertos y terrazas entarimadas.

Tarima de castaño sin tratar, atornillada a las vigas con separadores de madera de ipe, en patios cubiertos, terrazas y rampas accesos.

Estructura ligera de pino silvestre en suelos paredes y techos de los módulos, con tableros de fibras orientadas OSB 3.

Cara interior de modulos de Cafeteria, Recepción y Vivienda Guarda en tablero contrachapado de eucalipto.

Pavimentos en módulo de instalaciones, cocina y recepción en tablero contrachapado industrial.

Carpinteria exterior de madera de castaño.

Enlistonado exterior en madera de duramen de eucalipto con corte radial, atornillado a rastreles de la misma madera en fachada exterior e interior de los módulos y empalizadas de cierre de patios.

Vigas de madera de eucalipto encolada en la estructura de cubiertas de los patios entre módulos. Sobre ellas tableros OSB 4 formando la cubierta.

Planos