Minas de San Finx

Imaxen principal candidatura
Minas de San Finx, Lousame
Arquitecto
-
Arquitecto Técnico/ Aparexador
-
Promotor
-
Construtor
-
Data de inicio
-
Data de fin
-
PEM
-
Outros técnicos
-
Categorías nas que se presenta
Premio galego de rehabilitación
Imaxes adicionais
Sobre o proxecto

El proyecto consiste en la rehabilitación de unas antiguas viviendas de un poblado minero en un restaurante que de servicio al nuevo conjunto museístico de Las Minas de San Finx, en Lousame.

 

Las minas de estaño-wólfram de San Finx, tienen un importante valor patrimonial desde el punto de vista cultural e histórico, un patrimonio tanto inmaterial como material. Desde el punto de vista del patrimonio industrial minero, las minas de San Finx constan actualmente de un variado conjunto de equipamientos e instalaciones. Una suma de elementos que son el resultado de la realización de actividades, la creación de infraestructuras y equipamientos que han ido transformándose, adaptándose hasta configurar el estado actual de la mina. Están inventariados hasta 35 elementos constructivos de diferentes años. La puesta en valor de todo el conjunto pretende conseguir que las Minas de San Finx se convierta en un referente, único en Galicia , de los museos de la minería.

 

La edificación objeto de rehabilitación, destaca sobre las demás por su alto valor arquitectónico, constructivo y ambiental. Se trata de una construcción de dos plantas y un anexo de planta baja, que en el pasado albergó, entre otros usos, el de cuartel de la guardia civil y viviendas. El edificio se encuentra en una posición dominante y de cierre sobre un conjunto de edificaciones, así como punto final del acceso rodado al poblado. El nuevo uso será el de restaurante que preste servicio a los demás equipamientos del conjunto museístico.

 

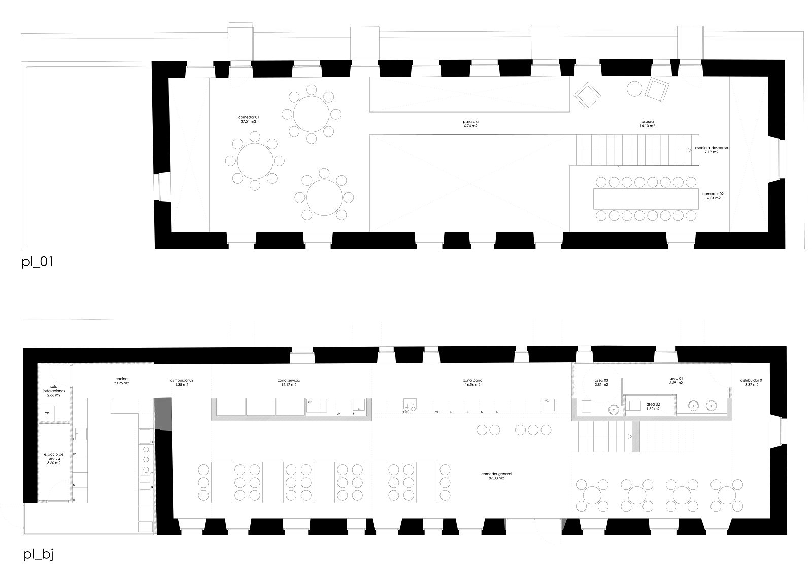
La idea principal del proyecto al recibir el encargo fue la de que, a pesar del cambio de uso, la nueva construcción reflejase mediante su arquitectura el contexto en el que se encuentra: el contexto industrial, minero que se pretende poner en valor. La geometría de la planta es rectangular, y constructivamente posee muros de fábrica de mampostería de 65cm de espesor y cubierta a dos aguas de fibrocemento. El edificio no posee forjados interiores ni carpinterías y se encuentra totalmente vacío, en un estado de deterioro importante.

 

La actuación, que parte de un presupuesto muy reducido, propone respetar la potencia de los huecos del alzado actuando en el interior del inmueble. Un único elemento consistente en una lámina de hormigón que se va plegando genera los diferentes espacios y usos necesarios para configurar el restaurante. Esta lámina plegada creará los recorridos, aseos, barra y zonas de servicio en planta baja. El segundo pliegue, en perpendicular al anterior, hará que esta lámina se convierta en los forjados que formarán los dos comedores en planta alta.

 

El anexo, prácticamente derruido en el estado previo, se utilizará para situar la cocina que de servicio al restaurante.

 

La edificación se encontraba en un importante estado de deterioro, en una zona increíblemente húmeda, al borde de un río, por lo que hubo que hacer una importante labor de impermeabilización, drenaje y de saneamiento de los muros y solera. Para crear la estructura de cubierta se utilizan unas cerchas metálicas, la cubierta se sustituye por una nueva de zinc, los muros se encintan y se crean unos dinteles de hormigón para regularizar y asentar los huecos.

Planos