Centro Docente Asistencial Down Coruña

Imaxen principal candidatura
C/ Pedralonga, s/n Lugar de Pedralonga A Coruña.
Arquitecto
-
Arquitecto Técnico/ Aparexador
-
Promotor
ASOCIACIÓN SÍNDROME DE DOWN CORUÑA
Construtor
-
Data de inicio
Luns, 01 Setembro, 2014
Data de fin
Martes, 01 Setembro, 2015
PEM
-
Outros técnicos
-
Categorías nas que se presenta
Premio galego de arquitectura
Imaxes adicionais
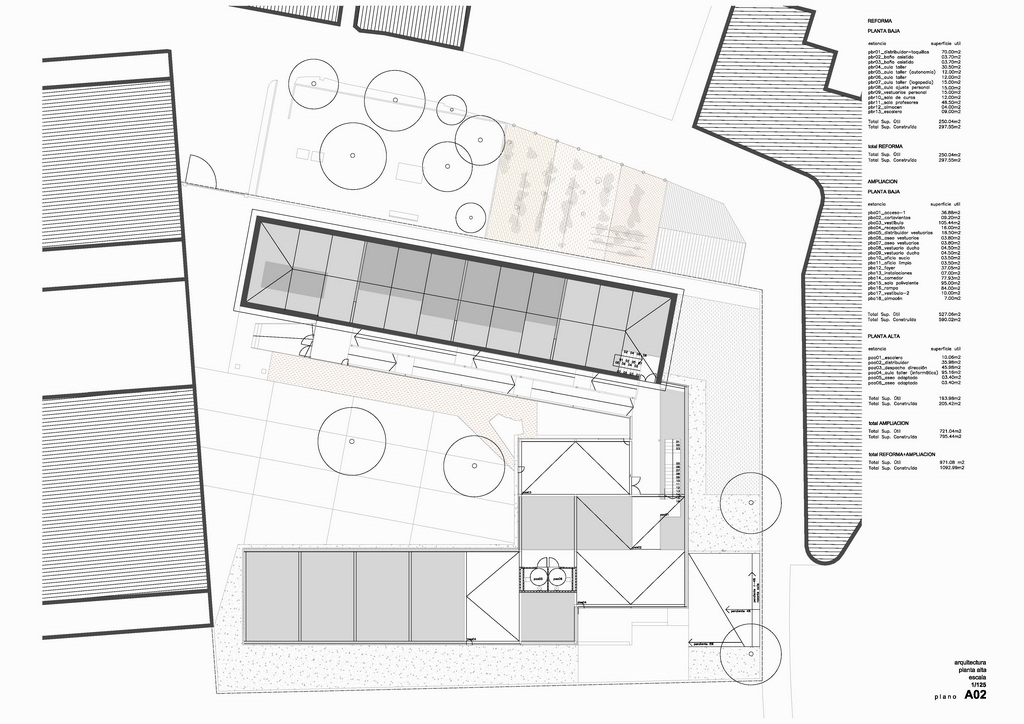
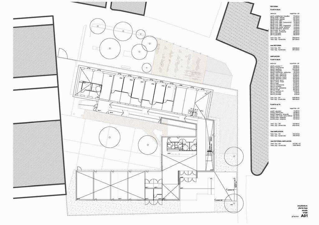
Sobre o proxecto

FINALIDAD DEL TRABAJO Y USOS:
Abordamos la reforma y ampliación el Colegio Pedralonga para su adaptación como nuevo
Centro Docente-Asistencial ya que las actuales instalaciones de la Asociación Down
Coruña no cubren las necesidades crecientes de sus usuarios.

 

Además de la reforma, se propone la ampliación de las instalaciones disponibles para
lograr las prestaciones requeridas alcanzando un total de 1.000m2.

 

El proyecto construido trata de responder al programa de necesidades procurando espacios
flexibles y polivalentes, todo ello garantizando condiciones de accesibilidad adaptada.

 

PREEXISTENCIAS:
El antiguo colegio de Pedralonga, construido en el año 1971, se configura como un pequeño
pabellón rectangular, exento y de planta baja con cubierta a cuatro aguas,
donde interiormente se distribuye el aulario de forma lineal.

 

PROGRAMA DE NECESIDADES:
En el proyecto se trata de dar respuesta a las necesidades planteadas por la Asociación
Down Coruña así como atender a las recomendaciones formuladas por la
“Conselleria de Traballo e benestar” y dar cumplimiento a la normativa de accesibilidad
y eliminación de barreras arquitectónicas así como a aquella referente a la promoción de
la autonomía personal y atención a la dependencia.